4/26 Wattle Road, Brookvale
Make it your style in this Brooky industrial unit for sale.
26 Wattle Road is a modern industrial complex over 2 levels containing 24 units. With 2 street frontages access is easy and well organised with one way traffic flow.
Previously a mechanical workshop it is currently used as a manufacturing facility and gallery space. Visit https://www.oilyragstudio.com.au/
Details:
Price – $1.45M
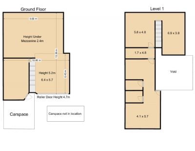
Strata Area 248 sqm
Original internal strata floor Area 205 sqm
Additional mezzazine approx. 65sqm
Total internal area approx. 270sqm
3 car spaces 43sqm (plus loading area in front of roller door)
Superb fitout on mezzanine levels for office and production/display space
Kitchenette and bathroom on level 1.
Air Conditioning for level 1.
Outgoings include:
• Strata - $10,098.72 plus GST
• Council - $1,617.83, excluding GST and
• Water - $82.80 annually excluding GST.
Unit 4 has an internal strata area of 205sqm plus 3 parking space bringing the total strata area up to 248sqm. There is additional mezzanine space bringing the total floor area to approx. 270sqm.
The multiple spaces give great flexibility in this modern industrial unit. As an added bonus the unit is cool in summer and warm in winter with a full concrete slab for a roof and the benefit of all weather loading and unloading. It also has a rare 3 parking spaces.
For more information, please contact Rob or Paul.
Previously a mechanical workshop it is currently used as a manufacturing facility and gallery space. Visit https://www.oilyragstudio.com.au/
Details:
Price – $1.45M
Strata Area 248 sqm
Original internal strata floor Area 205 sqm
Additional mezzazine approx. 65sqm
Total internal area approx. 270sqm
3 car spaces 43sqm (plus loading area in front of roller door)
Superb fitout on mezzanine levels for office and production/display space
Kitchenette and bathroom on level 1.
Air Conditioning for level 1.
Outgoings include:
• Strata - $10,098.72 plus GST
• Council - $1,617.83, excluding GST and
• Water - $82.80 annually excluding GST.
Unit 4 has an internal strata area of 205sqm plus 3 parking space bringing the total strata area up to 248sqm. There is additional mezzanine space bringing the total floor area to approx. 270sqm.
The multiple spaces give great flexibility in this modern industrial unit. As an added bonus the unit is cool in summer and warm in winter with a full concrete slab for a roof and the benefit of all weather loading and unloading. It also has a rare 3 parking spaces.
For more information, please contact Rob or Paul.
features
- 3 Phase Power
Contact The Agent
overview
-
8536831
-
$1,450,000
-
Industrial
-
For Sale
-
4/26 Wattle Road Brookvale NSW
-
3
-
274 sqm
-
3
-
$83 Per Year
-
$1,618 Per Year
-
$2,097 Quarterly