34b/90 Mona Vale Road, Warriewood
Freshly renovated Office Space Conveniently Located In MVB
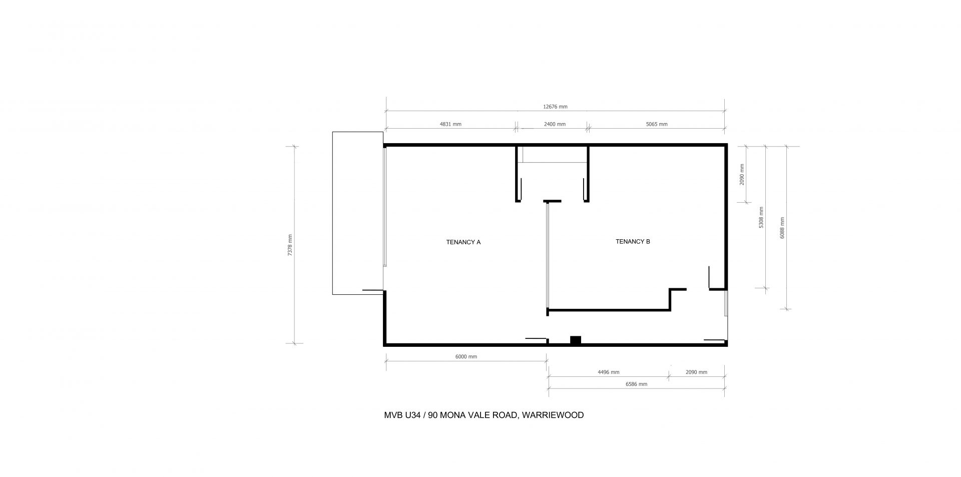
This beautifully finished, 40m2 office space is located on the 1st floor of the well renowned Mona Vale Business Park, is ready for a variety of uses.
Having been recently renovated to the highest standard by an interior designer, this space offers a calming environment to focus on your important projects or see clients face to face. Adjoining another tenancy, there is a shared kitchen for your use which can be closed off from the main area.
Details
• Approx. 40 sqm
• 1 secure basement parking space
• $20,000 Excluding GST
• Full amenities including a shower
• Internal Kitchenette
• Professionally managed building
MVB is a premium office building, maintained to the highest level. It offers a polished and professional environment for your business to thrive. It has full amenities available, including a shower, making a cheeky lunch time swim a reality!!
For more information or to arrange an inspection please contact Rob or Paul
Having been recently renovated to the highest standard by an interior designer, this space offers a calming environment to focus on your important projects or see clients face to face. Adjoining another tenancy, there is a shared kitchen for your use which can be closed off from the main area.
Details
• Approx. 40 sqm
• 1 secure basement parking space
• $20,000 Excluding GST
• Full amenities including a shower
• Internal Kitchenette
• Professionally managed building
MVB is a premium office building, maintained to the highest level. It offers a polished and professional environment for your business to thrive. It has full amenities available, including a shower, making a cheeky lunch time swim a reality!!
For more information or to arrange an inspection please contact Rob or Paul
Contact The Agent
overview
-
8465712
-
Offices
-
Leased
-
34b/90 Mona Vale Road Warriewood NSW
-
1
-
40 sqm
-
1